當前位置: 首頁 / 產品列表  / FSZ型分級機

FSZ型分級機

工作原理

FSZ分級機為我廠最新研制的新一代墨粉專用分級機。該機的結構為雙轉子垂直安裝的離心式螺旋送料分級機。該機分級原理先進、設計緊湊、結構合理、運轉平穩(wěn)、操作簡便。

在墨粉行業(yè)的運用如日中天,隨著在其他行業(yè)的逐步推廣應用,該機必將會有一個更加燦爛輝煌的前程。

特點

1、二次完整的分級在一個設備里完成;

2、PSD粒子分布得到更好的改善;

3、細粉剔除能力更強;

4、收得率得到了更高的提升;

5、與QLZ型流化床氣流粉碎機組成的生產線廣泛應用于打印機、復印件碳粉(墨粉)的生產。

型號

分級輪轉速

分級粒徑

處理能力

FSZ200

1200-2200r/min

D97=5-20um

2-10kg/h

FSZ300

2000-8000r/min

D97=5-20um

10-50kg/h

FSZ400

1195-5799r/min

D97=5-20um

50-150kg/h

FSZ500

1016-5080r/min

D97=5-20um

150-300kg/h

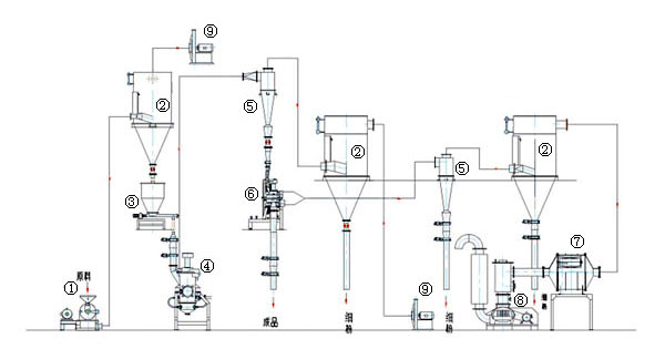
墨粉粉碎及分級流程圖

1、粗粉碎機

2、捕集器

3、螺桿加料器

4、QLZ450流化床式氣流粉碎機

5、旋風分離器

6、FSZ400分級機

7、羅茨風機過濾器

8、羅茨風機

9、風機

上海細創(chuàng)粉體裝備有限公司(原上?;C械三廠) 版權所有(C)2022  網絡支持  中國化工網  全球化工網  生意寶  著作權聲明 備案號:滬ICP備05011543號-1